Casa en Anapoima
Anapoima, Cundinamarca
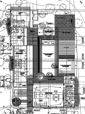
Nombre: Casa en Mesa de Yeguas
Ciudad: Anapoima, Cundinamarca
Año del proyecto: 2007
Superficie: 550.00 m²
Estado: construído
0807_01 0807_02 0807_03 0807_04 0807_05 0807_06 0807_07 0807_08 0807_09 0807_10 0807_11 0807_12 0807_13 0807_14 0807_15 0807_16 0807_17 0807_18 0807_19 0807_20 0807_21